Архітектурна майстерня
ПРОЄКТ "JELGAVAS GIMNASIUM"
- Функція: Державна гімназія
- Локація: місто Єлгава (Латвія)
- Площа: 1 968,79 м²
- Статус: Ескізний проєкт, 2023 рік.
- Архітектори: Даниленко Євген, Лемехов Сергій, Фредюк Артем, Шулевська Юлія, Шулевський Леонід та команда „Livland Group” (Латвія)
В житті завжди є місце архітектурному мистецтву!
Концепт реконструкції території Єлгавської державної гімназії Спідоли у місті Єлгава (Латвія) — проєкт, який ми створювали у співробітництві з латвійськими колегами у рамках архітектурного конкурсу, минулої зими (початок 2023 року).
До речі одразу скажу, що наша проєктна пропозиція здобула перше місце по результатах проведення конкурсу!!!:)
Основним девізом конкурсу були слова Цицерона: «Якщо у вас є сад і є бібліотека – у вас є все, що вам потрібно.»
Завданням конкурсу було розміщення таких основних об’єктів на території гімназії:
- Будівля бібліотеки із спортивним залом, актовим залом та класами, зручно пов’язана з існуючою будівлею гімназії.
- Відкритий стадіон для спортивних змагань з трибунами.
- Два волейбольних та баскетбольний майданчики.
- Смуга перешкод за стандартами НАТО.
- Шкільна площа для проведення загальношкільних та публічних заходів.
- Паркувальні місця для викладачів та гостей гімназії.
Все це ми розмістили на генплані згідно із завданням, по максимуму використовуючи можливості ділянки.
Візуальний образ будівлі бібліотеки із спортзалом — це лаконічне уособлення філософії символізму Латвійської культури. Spīdola – образ, що символізує духовну силу народу та дослівно перекладається, як «Сяюча». Енергію, що несе цей образ, ми відтворили у поєднанні природних матеріалів цегли та металу. Цегла – основний матеріал, стійкість, що пройшла випробування часом, крізь віки. Деталі з нержавіючої сталі, як портал вхідної групи, є уособленням світла та майбутнього.
Експлікація приміщень 1-го поверху
1.01 Спортивний зал — 311,52 м²
1.02 Аудиторія на 110 чоловік — 131,92 м²
1.03 Склад інвентарю — 42,65 м²
1.04 Гардероб із гримерною — 10,72 м²
1.05 WC Чоловічий — 11,80 м²
1.06 WC Інклюзивний — 6,52 м²
1.07 WC Жіночий — 11,8 м²
1.08 Роздягальня 1 — 24,21 м²
1.09 Роздягальня 2 — 27,39 м²
1.10 WC Інклюзивний — 3,93 м²
1.11 Кімната інвентарю для прибирання — 4,62 м²
1.12 Коридор — 70,85 м²
1.13 Рецепція з гардеробною — 17,22 м²
1.14 Приміщення охорони — 15,06 м²
1.15 Кухня — 19,07 м²
1.16 Серверна — 15,06 м²
1.17 Електрощитова — 12,55 м²
1.18 Сходи №1 — 27,49 м²
1.19 Кладова для спортивного інвентарю — 11,39 м²
1.20 Сходи №2 — 11,15 м²
1.21 Ліфт
1.22 Універсальний рекреаційний простір — 146,35 м²
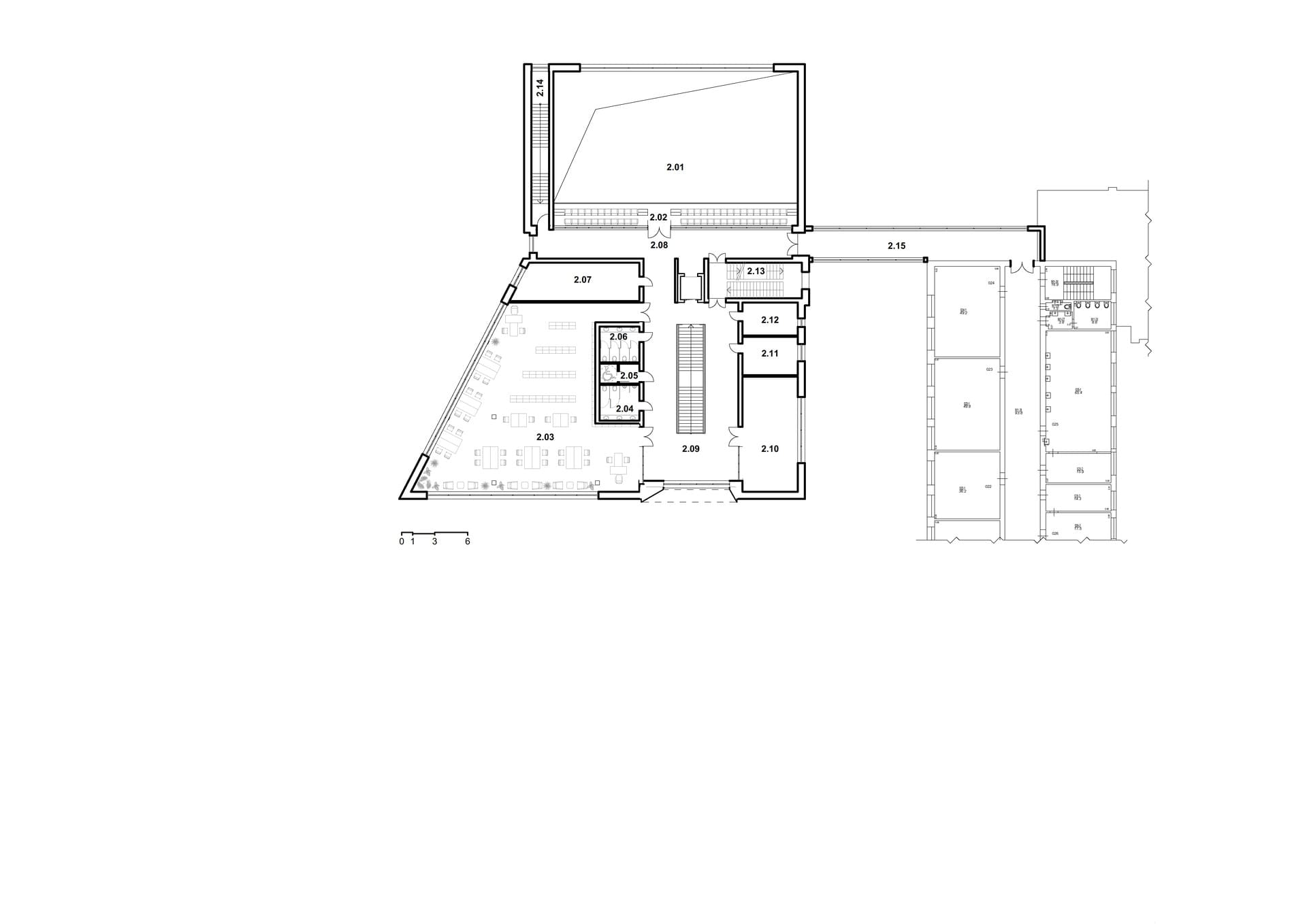
Експлікація приміщень 2-го поверху
2.01 Спортивний зал. Друге світло — 266.87 м²
2.02 Спортивний зал. Балкон для глядачів — 44.66 м²
2.03 Читальна зала — 244.05 м²
2.04 WC Чоловічий — 11.80 м²
2.05 WC Інклюзивний — 6.52 м²
2.06 WC Жіночий — 11.80 м²
2.07 Кімната для навчального обладнання — 37.37 м²
2.08 Коридор — 77.30 м²
2.09 Універсальний рекреаційний простір — 142.86 м²
2.10 Клас бібліотеки — 52.56 м²
2.11 Тихий читальний зал — 17.57 м²
2.12 Кабінет психолога — 15.06 м²
2.13 Сходи №1 — 28.19 м²
2.14 Сходи №2 — 22.71 м²
2.15 Перехід в існуючу будівлю гімназії — 56.20м²
Основою архітектурного рішення стало поєднання різних функціональних просторів, під одним дахом, що створюють нові зв’язки між навчанням, спортом і дозвіллям . Завдяки надземному переходу, учбова частина бібліотеки безпечно і ефективно сполучається з гімназією.
Шкільна площа — місце залучення громади та проведення основних публічних заходів гімназії. Цей простір заглиблений відносно основної поверхні ділянки, завдяки чому в ньому з’являється своєрідна камерність та затишок. Тут розташувалися зелені тераси із садом з видом на сцену, що може працювати як всередину (для актового залу) так і ззовні, розширюючи спектр публічних заходів.
Спортивний блок включає криту спортивну залу із місцями для глядачів у два яруси, що перетікає до відкритих спортивних просторів з майданчиками для волейболу, баскетболу та біговим треком з трибунами. Територія має гнучкий зв’язок між корпусами гімназії, що дозволяє оптимізувати учбовий процес та проведення змагань або публічних заходів.
В світлу пору доби головний простір бібліотеки читальний зал наповнюється м’яким світлом через великі вітражі північно-східного фасаду. Перфорований цегляний фасад одночасно захищає будівлю від прямих сонячних променів та проявляє гру тіней цегляної вуалі із південно-східного фасаду. В вечірній час бібліотека випромінює світло назовні та стає візуальним маяком для перехожих.
Віримо, що новий проєкт буде реалізовано, та новий комплекс гімназії створить унікальну платформу для розвитку талантів та культурної активності Латвії — країни, що відстоює цінності та якнайдужче допомагає Україні в ці історичні часи.
ІНШІ ПРОЄКТИ
ПРОЄКТ «KRAMATORSK PARK QUARTER»
Житлові будинки
ПРОЄКТ «DREAM»
Житлові будинки
ПРОЄКТ «COPERNIC»
Житлові будинки











